
All’interno dell’esclusivo consorzio Colli della Farnesina, a pochi passi da piazza dei Giuochi Delfici e Vigna Stelluti, proponiamo in vendita un appartamento di 200 mq interni e 66 esterni sito al quarto piano di un palazzo anni ‘70.
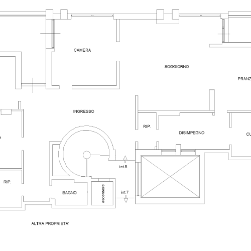
Dall’ampio ingresso si accede direttamente alla zona giorno, alla zona notte e a quella di servizio.
Il grande soggiorno di oltre 50mq è dotato di camino funzionante e di porta scrigno per separare salotto e camera da pranzo.
Grazie alle due porte finestre sul terrazzo abitabile si può godere di una vista unica sulla splendida villa del Sacro Cuore di Gesù e sul verde condominiale.
Il resto dell’appartamento si sviluppa in tre camere, di cui una con accesso al secondo terrazzo e una adibita a studio, un bagno con doccia e uno con vasca dotato di antibagno con comodi armadi a muro.
La zona di servizio consta di camera con affacci sul cortile interno, cucina abitabile, balcone e ripostiglio, ed è possibile realizzare un ulteriore bagno. I muri, principalmente tramezzi, consentono un’eventuale riorganizzazione degli spazi secondo le proprie esigenze.
L’appartamento è dotato di numerose altre armadiature su misura e di impianto di allarme, e grazie alle ampie vetrate, al piano alto, alla quadrupla esposizione e alla distanza con gli edifici circostanti, gode di una luminosità solitamente appannaggio degli attici.
Completano la proprietà una porzione di cantina e due posti auto nel garage condominiale.
Grazie alla doppia portineria h24 su via dei Colli della Farnesina e via della Farnesina, oltre a quella dedicata del singolo palazzo, il comprensorio garantisce privacy, sicurezza e quiete di prim’ordine.
Inoltre, è consentito il parcheggio di ulteriori mezzi lungo i numerosi viali.
Libero da subito.
Le presenti informazioni, immagini e planimetrie hanno carattere illustrativo e non costituiscono elementi contrattuali.
Caratteristiche
3D Tour

Manfredi de Arcayne
m.dearcayne@fullcircleproperties.it
+393284117650

